Open menu

OUR SERVICES

Compassionate Assisted Living in Worcester County, MA

At Notre Dame du Lac Assisted Living in Worcester, MA, our mission remains deeply committed to that of Saint Julie Billiart, founder of the order of Sisters of Notre Dame de Namur.

Our senior living community feels like a true home filled with friends, comfort, safety, and love. This is thanks to our caring staff, lush grounds, unique and tastefully designed apartments, exceptional cuisine, and a wide array of social activities. Learn more about our specialized Assisted Living and Memory Care and enriching services below.

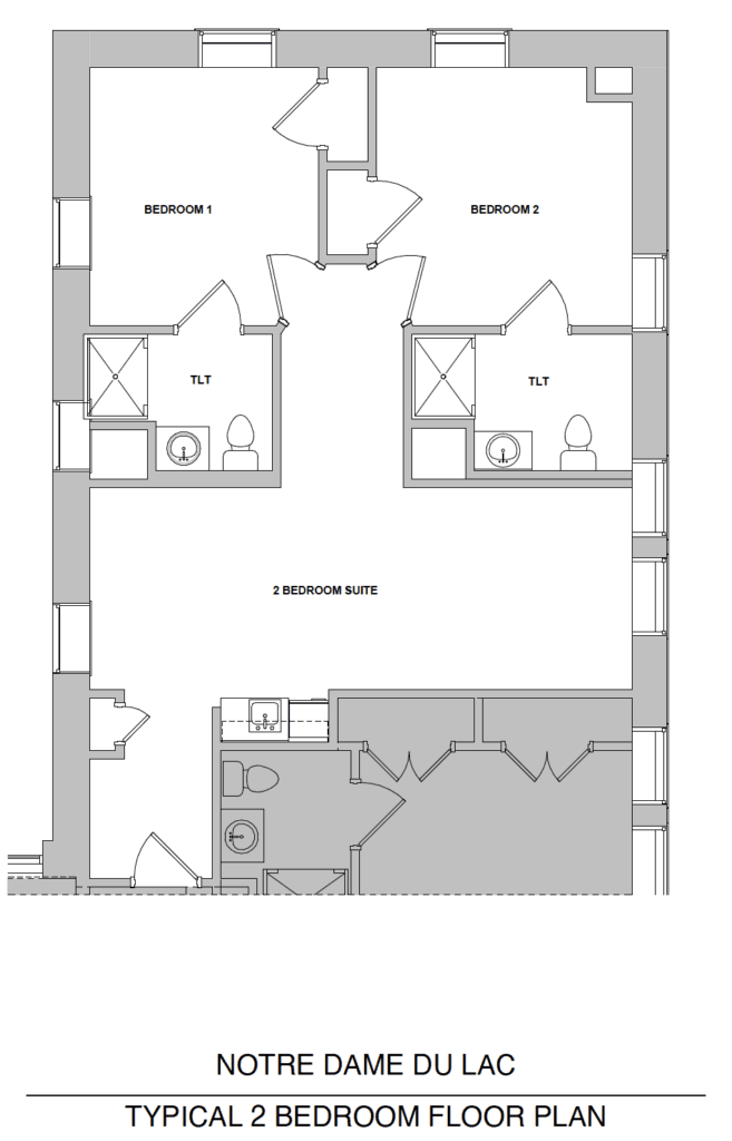
Apartments

Notre Dame du Lac assisted living features 110 beautiful apartments with unique floor plans in various sizes, each designed with your comfort and ease of lifestyle in mind.   ​

Choose from private studio, one-bedroom, or two-bedroom apartments, ranging in size from 350 square feet to 700 square feet​.

Browse the gallery to view more apartment photos

Each apartment features:

  • Carpeted bedroom and luxury vinyl plank flooring throughout the living spaces​
  • ​Kitchenette with microwave and refrigerator/freezer
  • Individually-controlled heating and air conditioning
  • Full bathroom with walk-in showers and grab bars​
  • Smoke detectors, sprinklers, and carbon monoxide detectors​
  • All utilities included except for telephone and cable TV​
  • Free Wi-Fi
  • Ample closet space
An assisted living bedroom with a bed, dresser, and mirror.
NotreDame_2bdrmNotreDame_1bdrmNotreDame_studio1

Two-bedroom

Our two-bedroom apartments offer the most space, and many have an additional bathroom as well.

One-bedroom

Our one-bedroom apartments provide a nice separation between the living area and rest/sleep space.

Studio

Our studio apartments provide a nice spacious living option for those who feel they do not need all the space that our one-bedroom apartments have to offer.

Monthly Fees

We want billing to be the least of your worries. Notre Dame du Lac charges one all-inclusive monthly fee, including our complete package of services and amenities.

Assessment Fee

One time only charge of $5,000 upon move-in

Monthly Fee Assisted Living

​Studio: $6,375-$7,150​
One Bedroom: $7,200-$9,000
Two-Bedroom: $9,600-$10,250
Second Occupant Fee $2,600 per month
Harmony Special Care Living (Dementia) Studio: $11,350
Shared Apartments: please contact regarding availability

Frequently Asked Questions

Yes, depending on apartment availability.

Every resident is assigned a mailbox when they move in. USPS delivers mail here 6 days a week (excluding holidays). Residents can then retrieve their mail from their assigned mailbox. Additionally, any packages that arrive for residents are delivered to their room.

To settle in comfortably, think about setting up your new place just like you would your own apartment. Bring along items like furniture, household essentials (like paper goods and toiletries), decorations, and anything else that makes your space feel like home.

If someone is hospitalized, their apartment is still their personal living space.  After 14 days, a meal credit starts to apply to their account.

We honor the personal dignity of all individuals with compassion and without distinction of gender, age, ethnicity, sexual orientation, race, or creed. We strive to create a work environment where each person is valued, respected, and given an opportunity for personal, educational, and professional growth. Please view our Nondiscrimination Policy here.

Contact UsWe Honor Veterans

Notre Dame Health Care is a 501(c)(3) nonprofit organization. All gifts are tax deductible to the fullest extent of the law.

VISIT

555–559 Plantation Street, Worcester, MA 01605

Equal Housing Opportunity Logo
ADA Logo
© 2026 | All Rights Reserved
Back to Top